O projeto está a ser desenvolvido com base no Certificado de Planeamento Urbano n.º 769/01.08.2023 emitido pela Câmara Municipal de Zalău e representa um dos maiores investimentos médicos na área. As obras visam alargar as infra-estruturas hospitalares através da realização de um edifício novo, moderno e funcional, em conformidade com as mais elevadas normas sanitárias, técnicas e de segurança.

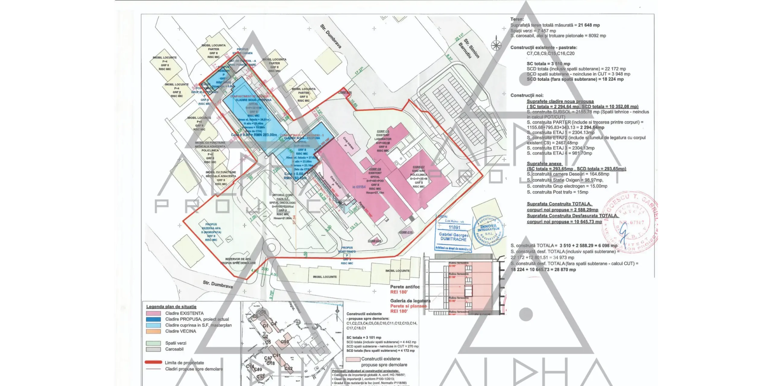
O terreno de investimento tem uma superfície total de 21.648 metros quadrados, nos quais se situam tanto os edifícios existentes - preservados e integrados no novo conceito - como as áreas dedicadas ao futuro edifício. Os edifícios existentes totalizam mais de 3.500 metros quadrados de área útil e uma área total desenvolvida de mais de 22.000 metros quadrados, à qual será acrescentada a nova estrutura planeada.

Projeto

Ampliação, modernização e equipamento do hospital de emergência do condado de Zalău (edifício C9)

Beneficiário

Conselho do Condado de Sălaj - Hospital do Condado de Zalău

Tipo de projeto

AMPLIAÇÃO E MODERNIZAÇÃO DO HOSPITAL

Localização

Condado de Sălaj, cidade de Zalău, Str. Simion Barnuțiu, nr. 67-67A.

Engenharia

ALPHA PROJECT SRL

Proposta de construção nova

O novo corpo terá um regime de altura S+P+4E+Eth, O projeto de construção é um projeto de grande envergadura, integrando funções médicas críticas, bem como áreas técnicas e administrativas. A área de construção proposta é de cerca de 2 600 metros quadrados e a área desenvolvida ultrapassa os 10 600 metros quadrados (excluindo as caves), elevando o total da nova construção para mais de 13 200 metros quadrados de área desenvolvida, juntamente com os espaços técnicos subterrâneos.

Os indicadores urbanísticos estão dentro dos limites permitidos, com um P.O.T. de 28% e um C.U.T. de 1,33. O novo edifício terá uma altura máxima de sótão de 23,85 metros e de 27,62 metros na fachada. Estão previstos 14 novos lugares de estacionamento dedicados ao edifício.

Necessidade do projeto e justificação do investimento

O hospital existente, construído nos anos 1970-1980, funciona atualmente com 753 camas distribuídas por 15 enfermarias e 14 compartimentos. O atual bloco operatório, com apenas sete salas de operações, está técnica e funcionalmente ultrapassado e não cumpre os requisitos da Portaria 914/2006.

De acordo com a regulamentação, um hospital com esta capacidade necessita de mínimo 21-25 salas de operações, para cobrir as especialidades cirúrgicas e as necessidades reais dos doentes. A expansão da capacidade operacional é vital para reduzir os tempos de espera, aumentar a segurança dos cuidados médicos e modernizar as infra-estruturas de saúde do condado.

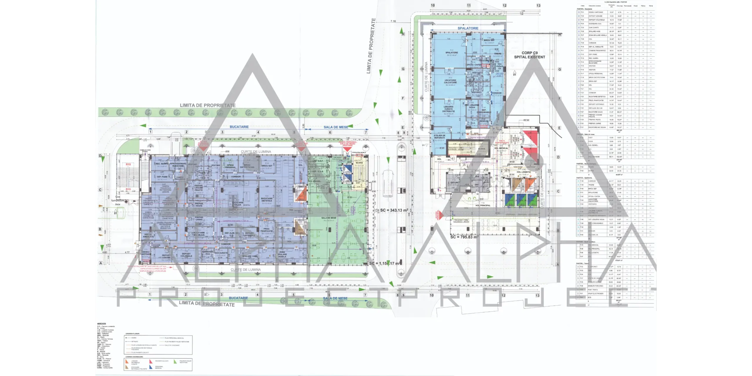
Localização e intervenções nos edifícios existentes

A ampliação situa-se no lado nordeste do edifício C9, tendo sido proposta a demolição de vários edifícios existentes para integrar o novo edifício, representando funções a relocalizar na nova estrutura. A zona tornar-se-á uma plataforma técnica completa para o complexo hospitalar, integrando:

  • Bloco de operadores moderno

  • Secção ITA

  • Cozinha e cantina

  • Lavandaria e esterilização

  • Área administrativa

  • Armazenagem e logística

As novas vias de circulação são concebidas para respeitar rigorosamente a separação fluxos limpos e sujo, A sua integração é efectuada através de túneis subterrâneos e de passagens superiores específicas.

Organização funcional do edifício

O novo edifício integra funções médicas e técnicas distribuídas verticalmente:

  • 4º andar - áreas administrativas e terraço técnico

  • 3º andar - bloco de acionamento + zona de despertar

  • 2º andar - bloco de acionamento + zona de despertar

  • 1º andar - Enfermaria da UCI, instalações administrativas e UT

  • Rés do chão - receção, bloco alimentar, cantina, lavandaria

  • Cave - vestiários do pessoal, esterilização, oficinas, armazéns, lavagem de camas, abrigo ALA

A mobilidade vertical é assegurada por 10 elevadores especializados, Cada um dedicado a um fluxo: doentes, material limpo, material sujo, pessoal médico, abastecimento ou evacuação. A distribuição é cuidadosamente correlacionada com os circuitos médicos exigidos pela legislação sanitária.

Soluções técnicas e estruturais

O edifício está enquadrado em Categoria A - Importância excecional, sendo uma construção estratégica de grande interesse. A estrutura foi projectada de acordo com:

  • P100-1/2013 - Classe de importância I

  • P118/1999 - Classe de resistência ao fogo I

  • Regras para reduzir o risco de incêndio

A superestrutura é feita de armações metálicas, As instalações foram concebidas tendo em conta a eficiência energética, a segurança contra incêndios e a higiene sanitária. As instalações foram projectadas privilegiando a eficiência energética, a segurança contra incêndios e a higiene sanitária, estando previsto o acesso dos carros de bombeiros em dois lados, de acordo com as normas NP118.

Conclusão

O novo edifício representa um grande investimento na modernização das infra-estruturas médicas em Zalău. Ao ampliar o bloco operatório, reorganizar as funções técnicas e melhorar a circulação médica, o projeto coloca o hospital ao nível das normas europeias, apoiando a qualidade dos cuidados médicos, a segurança dos doentes e a eficiência operacional de todo o complexo.

Galeria

pt_PTPortuguese